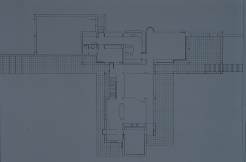
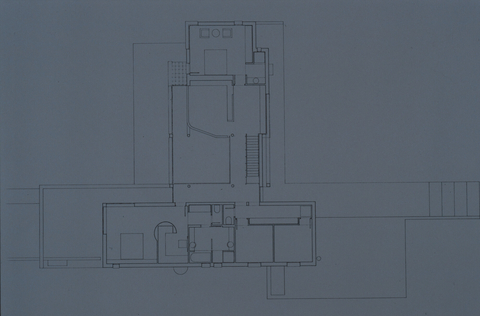
Identificatie Referentienummer BE/653717/0082-GB/0300 Naam BE/653717/0082-GB/0300, Dia-opbergdoos met beelden van maquette en plannen van onbenoemd project Begindatum 1991 Einddatum 1991 Omvang 27 dia's Inhoud 27 dia's met beelden van maquette en plannen van een onbenoemd project. Gefotografeerd door Georges Baines. Meer info Ordening nee Archiefverwerking door Archiefbeschrijving (Qi), 18/06/2021, Frits Vandenweghe Andere identificatiegegevens Andere titel Schuermans Beelden 27 Beeld(en) Paginering Huidige pagina 1 Pagina 2 Pagina 3 Pagina 4 Volgende pagina › Laatste pagina »